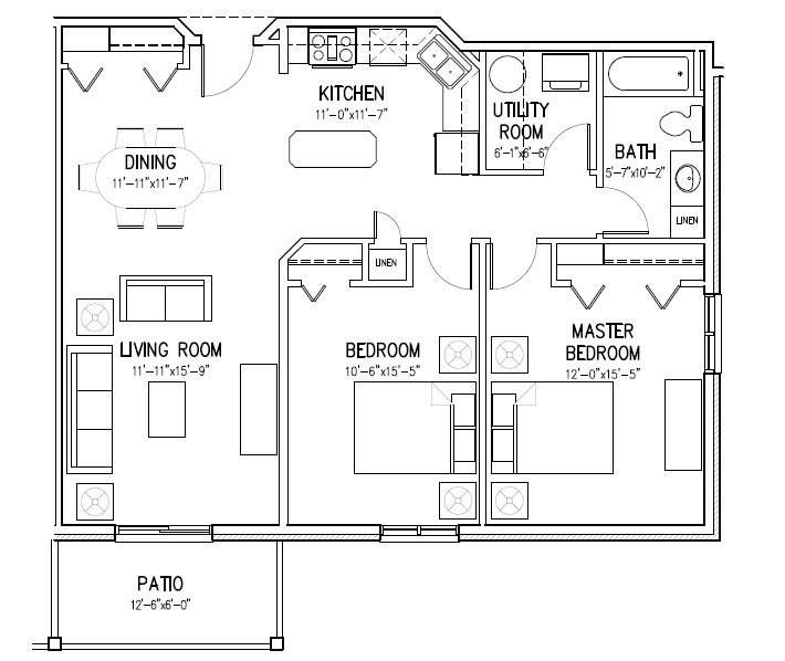
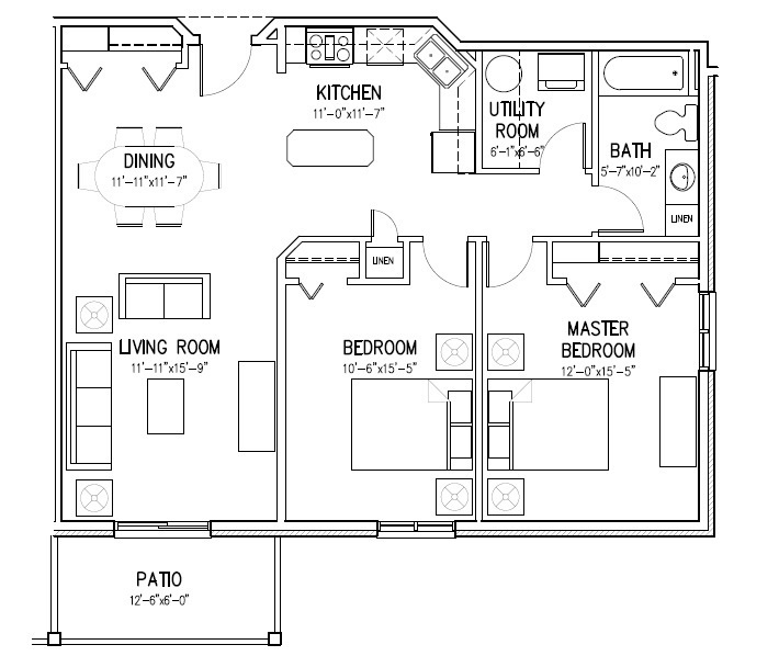
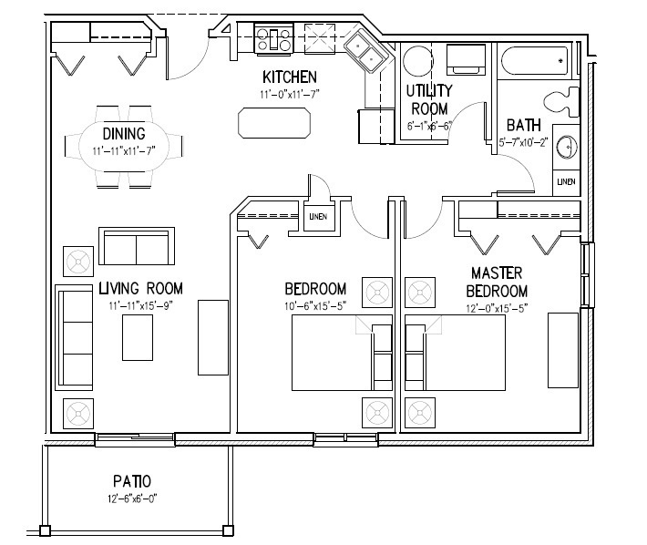
About Domaine Sorbonne Estates (Phase 2)
Welcome to Domaine Sorbonne Estates Phase 2, a stunning new addition to Dieppe, NB. Be among the first to live in this brand-new building, offering unparalleled convenience and tranquility. Enjoy direct access to the Riverfront Park walking trail with scenic views of the Petitcodiac River—perfect for a leisurely stroll.
Each unit features modern finishes, soundproofing, and mini-split heat pumps for year-round comfort. The building includes a fitness room, secure elevators, and 24/7 video surveillance, ensuring peace of mind. You'll enjoy a serene atmosphere while being close to shopping, dining, and entertainment. Luxury and comfort await!








